Tưng bừng mua sắm Bồn Cầu Một Khối TOTO MS864T2 chính hãng giá rẻ tại Bùi Minh dành cho bạn
Tưng bừng mua sắm Bồn Cầu Một Khối TOTO MS864T2 chính hãng giá rẻ tại Bùi Minh dành cho bạn
Mang đến sản phẩm bồn cầu một khối TOTO MS864T2, Bùi Minh xin trân trọng giới thiệu đến quý bạn dòng sản phẩm cao cấp, giá tốt đến từ Nhật Bản.
Bồn cầu một khối TOTO MS864T2 là dòng bồn cầu có thiết kế két nước và bệ ngồi liền khối, tạo thành một thể thống nhất mang phong cách hiện đại, sang trọng, làm tôn lên vẻ đẹp khi được trang bị cho phòng tắm của bạn.

Bồn cầu một khối TOTO MS864T2 mang phong cách hiện đại
Ưu điểm của bồn cầu TOTO MS864T2 mà bạn nên biết:
► Thiết kế bàn cầu sang trọng: đem lại vẻ đẹp thẩm mỹ cho phòng tắm nhà bạn.
► Nắp đóng êm: giúp hạn chế tiếng ồn khi bạn đậy nắp.
► Phù hợp lắp đặt với nắp rửa điện tử WASHLET: giúp bạn nâng cấp tính năng thông minh khi cần.
► Công nghệ CeFiONtect giúp lòng bàn cầu siêu nhẵn, hạn chế tối đa các vết bẩn, vi khuẩn: bảo vệ an toàn sức khỏe của toàn gia đình bạn khi sử dụng sản phẩm.

Công nghệ CeFiONtect
► Công nghệ xả G-Max êm, mạnh mẽ hiệu quả: giúp bạn xả nước nhanh chóng, không tốn thời gian, không phải xả lại thêm lần nữa.

Công nghệ xả G-Max êm
Nhược điểm của bồn cầu TOTO MS864T2:
► Kích thước bồn cầu lớn nên phù hợp với phòng vệ sinh có diện tích rộng, khi lắp đặt tại phòng vệ sinh diện tích hẹp sẽ chiếm nhiều không gian.
► Có nhiều khe góc nên sẽ tốn công hơn khi vệ sinh sản phẩm MS864T2.
Thông tin cơ bản bồn cầu TOTO MS864T2:
Bồn cầu của thương hiệu thiết bị vệ sinh TOTO
Tên sản phẩm: Bồn cầu TOTO MS864T2
Bàn cầu vệ sinh TOTO 1 khối, kèm nắp đóng êm TC393VS
► Hệ thống xả: GMAX Siphon Jet
► Lượng nước xả: 6L
► Thiết kế: Thân dài
► Tâm xả: 305mm
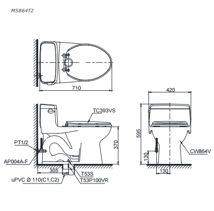
► Kích thước: Cao thùng 595 x Cao thân 370 x dài 710 x rộng 420 (mm)
► Áp lực nước: 0.05MPa~0.75MPa
► Màu sắc: Màu trắng
► Bao gồm van khóa và gioăng đế
► Xuất xứ : Việt Nam
► Mã sản phẩm cũ: MS864
Bản vẽ kĩ thuật sản phẩm:

Bùi Minh là đơn vị chuyên cung cấp sỉ lẻ các sản phẩm của Caesar với chất lượng chính hãng, giá bán tốt được nhiều khách hàng tin tưởng và sử dụng.
Những lợi ích chung khi mua sản phẩm tại Bùi Minh và các cửa hàng, đại lý chính hãng:
- Sản phẩm chuẩn 100%.
- Bảo hành chính hãng 100%.
- Giá bán tốt hơn các cửa hàng nhỏ lẻ.
- Chào đón, tư vấn và chăm sóc khách hàng tận tình.
Những lợi ích Hơn Nữa mà bạn nhận được đặc biệt chỉ có tại Bùi Minh:
- Bạn mua được sản phẩm với giá rẻ nhất thị trường (Alo Bùi Minh để có giá tốt nhất).
- Hoàn ngay 500% giá tiền cho bạn nếu phát hiện hàng giả, nhái.
- Tại Hà Nội, sản phẩm giao tới cho bạn cực nhanh ngay cả trong ngày nghỉ lễ.
- Miễn phí vận chuyển nội thành Hà Nội với đơn hàng từ 2 triệu.
Chúng tôi khuyến khích bạn trao đổi và xin ý kiến từ người quen đã có kinh nghiệm mua hàng tại nhiều nơi và so sánh đâu là địa chỉ mua sản phẩm tốt nhất.
Một Số Hình Ảnh Về Bùi Minh:



Lời Nhận Xét:


Sản Phẩm Đang Được Bán Tại Bùi Minh Với Giá: 6.930.000 đ

Chuyên cung cấp các sản phẩm chất lượng, cách thức làm việc chuyên nghiệp nhanh chóng đem lại nhiều lợi ích cho khách hàng. Vì thế nếu bạn quan tâm tới sản phẩm này hãy liên hệ ngay với chúng tôi:
Caesar Bùi Minh:
>> Địa chỉ: BT3 Lô 8, KĐT Vinaconex 3, Trung Văn, Nam Từ Liêm, Hà Nội, Việt Nam.
>> Hotline: 0968.458.885
>> Website: ToTobm.com
Nhận xét
Đăng nhận xét